客户服务中心

您可以直接拨打我们的客户服务热线或者把您的意见发送至我们的邮箱

010-82684401

mingdedata@163.com

北京市昌平区宏福国际创新中心A座4030室

当前位置:企业新闻
满满干货丨纸质文件归档一定要按照标准进行,千万别装错盒!

我们都知道档案是人们在各项社会活动中直接形成的各种形式的具有保存价值的原始记录。对于纸质档案归档也是有一定的规范标准。依据DA/T 22—2015《归档文件整理规则》档案盒装规范如下:

6.4 装盒 

将归档文件按顺序装入档案盒,并填写档案盒盒脊及备考表项目。不同年度、机构(问题)、保

管期限的归档文件不能装入同一个档案盒。

6.4.1 档案盒

6.4.1.1 档案盒封面应标明全宗名称。档案盒的外形尺寸为 310mm×220mm(长×宽),盒脊厚度可以根据需要设置为 20 mm、30mm、40mm、50mm 等(见附录 D 图 D1)。

图片3.png

 


6.4.1.2 档案盒应根据摆放方式的不同,在盒脊或底边设置全宗号、年度、保管期限、起止件号、盒号等必备项,并可设置机构(问题)等选择项(见附录 D 图 D2、图 D3)。其中,起止件号填写盒内第一件文件和最后一件文件的件号,起件号填写在上格,止件号填写在下格;盒号即档案盒的排列顺序号,按进馆要求在档案盒盒脊或底边编制。

4.png

 

6.4.1.3 档案盒应采用无酸纸制作。

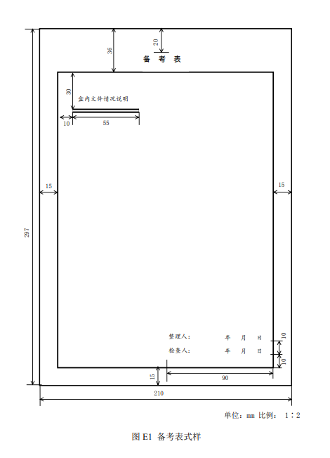
6.4.2 备考表

备考表置于盒内文件之后,项目包括盒内文件情况说明、整理人、整理日期、检查人、检查日期

(见附录 E)。

5.png

 

a)盒内文件情况说明:填写盒内文件缺损、修改、补充、移出、销毁等情况。

b)整理人:负责整理归档文件的人员签名或签章。

c)整理日期:归档文件整理完成日期。

d)检查人:负责检查归档文件整理质量的人员签名或签章。

e)检查日期:归档文件检查完毕的日期。

6.5 排架

6.5.1 归档文件整理完毕装盒后,上架排列方法应与本单位归档文件分类方案一致,排架方法应避免频繁倒架。

6.5.2 归档文件按年度—机构(问题)—保管期限分类的,库房排架时,每年形成的档案按机构(问题)序列依次上架,便于实体管理。

6.5.3 归档文件按年度—保管期限—机构(问题)分类的,库房排架时,每年形成的档案按保管期限依次上架,便于档案移交进馆。


拓展小知识

档案的类别

主要有以下八大类:文书档案盒,科技档案盒,人事档案盒,会计档案盒,照片档案盒,光盘档案盒,实物档案盒。卷皮也属于档案盒一类。


规格

档案盒一般规格大小为31*22cm(封面)但是由于档案盒的脊背不同,一般档案盒的脊背从2cm到6cm不等,(特殊规格的也可订做)单位名称以及LOGO都需要特殊设计和制作。


图片2.png

文章整理于国家档案局官网,如有侵权请联系随时进行删除!